Top.Mail.Ru
menu menu close

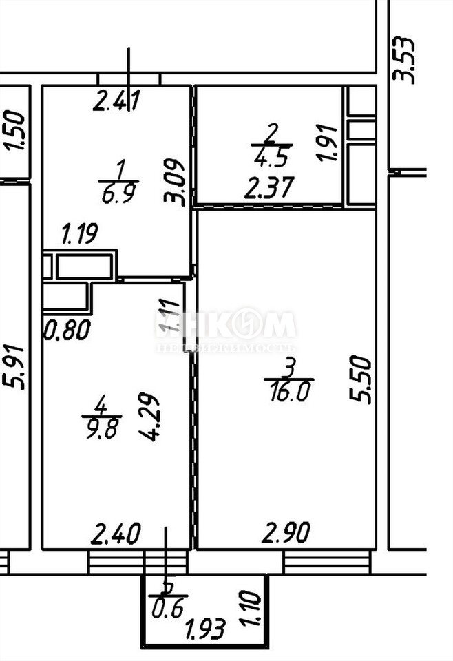
1-комнатная квартира, 17 этаж, 37.2 м2

Москва г., Красноказарменная ул., д. 14А, корп. 2

Лот вт-0431620

17 750 000

Продажа 1-комнатной квартиры, 37.2 м², этаж 17/21

17 750 000

477 151 ₽/м2

Лот вт-0431620
Отправить себе
Ипотека

17 750 000

477 151 ₽/м2

Продажа 1-комнатной квартиры, 37.2 м², этаж 17/21

Лот вт-0431620
Отправить себе
Комнат
1
Общая
37.2
Жилая
16
Кухня
9.8
Этаж
17/21

Описание

Номер лота: вт-0431620. Предлагаем однокомнатную квартиру в ЖК бизнес-класса "Петр 1" без ремонта. Высокие потолки - 3 м, окна во двор с отличным видом, балкон из кухни. В квартире начат ремонт и проведены работы по черновой отделке. Закрытый, ухоженный и зеленый внутренний двор без машин, чистые подъезды (войти можно и с улицы, и со двора) с видеонаблюдением. В собственности более 5 лет, куплена у застройщика без кредитов и сертификатов, прямая и свободная продажа, один собственник. Квартира может стать выгодной инвестицией для покупателя, так как имеет множество преимуществ - можно сделать бюджетный ремонт под "себя", ЖК расположен в отличной транспортной доступностью как к метро (рядом станция "Авиамоторная"), так и для автомобилистов - имеется удобный выезд на Шоссе Энтузиастов. Отличная инфраструктура района дает много преимуществ - в шаговой доступности расположены учебные заведения, включая МЭИ, детские сады, парк Лефортово и набережная- в пяти минутах ходьбы, кафе, рестораны и службы доставки. Дом обеспечен охраняемой дворовой территорией и подземным паркингом. Звоните, показ оперативно!

Общая информация

Объект
Квартира
Тип
Вторичка
Условия продажи
Свободная
Тип дома
Монолитно-кирпичный
Лот №
вт-0431620
Комнат
1
Этаж
17/21
Площадь
Общая 37.2 м2
Жилая 16 м2
Кухня 9.8 м2
Площадь комнат ?
+ обозначение смежных комнат
обозначение изолированных комнат
16
Ремонт
Без ремонта
Балкон
Балкон
Высота потолков
3.20 м
Вид из окна
Панорамный вид
Санузел
Совмещённый
Лифт
Груз / пасс (1+3)

Хотите продать похожую 1-комнатную квартиру в этом районе?

Бесплатно оценить

Похожие предложения

Индивидуальный подбор недвижимости

Заявка успешно отправлена.
Мы обрабатываем заявки ежедневно с 9:00 до 21:00.
Наверх
Мы используем cookie-файлы, чтобы вам было проще работать с сайтом. Узнать больше
К сайту подключен сервис Яндекс.Метрика, который также использует файлы cookie. Узнать больше
Согласен
Согласен
Согласие на обработку персональных данных с помощью сервиса «Яндекс.Метрика»

Я (далее — «Пользователь» или «Субъект персональных данных») при использовании сайта https://www.incom.ru (далее — «Сайт») даю свое согласие на обработку персональных данных посредством сервисом веб-аналитики «Яндекс.Метрика», предоставляемый компанией ООО «ЯНДЕКС», (119021, г. Москва, вн. тер. г. Муниципальный Округ Хамовники, ул. Льва Толстого, д. 16), Союзу содействия развитию рынка недвижимости «ИНКОМ-НЕДВИЖИМОСТЬ» (ИНН 7719020591, 105318, г. Москва, ул. Щербаковская, д. 3) , со следующими условиями.

1. Категории обрабатываемых данных: IP-адрес, информация из файлов cookie, информация о браузере пользователя (или иной программе, с помощью которой осуществляется доступ к сервисам Сайта), информация об аппаратном и программном обеспечении устройства пользователя, время доступа, адреса запрашиваемых страниц.

2. Цель обработки персональных данных: анализ пользовательской активности с помощью сервиса «Яндекс.Метрика».

3. Способы обработки: сбор, запись, систематизация, накопление, хранение, уточнение (обновление, изменение), извлечение, использование, обезличивание, передача (доступ, предоставление), блокирование, удаление, уничтожение персональных данных.

4. Срок обработки и хранения: до получения от субъекта персональных данных требования о прекращении обработки/отзыва согласия.

5. Способ отзыва: заявление об отзыве в письменном виде путём его направления на адрес электронной почты: pr@incom.ru или путем письменного обращения по адресу: 105318, г. Москва, ул. Щербаковская, д. 3.

6. Субъект персональных данных вправе запретить своему оборудованию прием этих данных или ограничить прием этих данных. При отказе от получения таких данных или при ограничении приема данных некоторые функции Сайта могут работать некорректно. Субъект персональных данных обязуется сам настроить свое оборудование таким способом, чтобы оно обеспечивало адекватный его желаниям режим работы и уровень защиты данных файлов «cookie», а Организация не предоставляет технологических и правовых консультаций на темы подобного характера.

7. Порядок уничтожения персональных данных при достижении цели их обработки или при наступлении иных законных оснований: лицо, ответственное за обработку персональных данных, производит стирание данных методом перезаписи (замена всех единиц хранения информации на «0») с составлением акта об уничтожении персональных данных.

8. Я согласен/согласна квалифицировать в качестве своей простой электронной подписи под настоящим Согласием выполнение мною следующего действия на сайте https://www.incom.ru: нажатие мною на интерфейсе с текстом «К сайту подключен сервис Яндекс.Метрика, который также использует файлы cookie» на элемент с текстом «Согласен».

Соглашение об использовании cookie-файлов
1. Общие сведения

На Сайте компании Союза содействия развитию рынка недвижимости «ИНКОМ-НЕДВИЖИМОСТЬ» (в дальнейшем — Компания) применяется технология сбора информации с использованием cookie-файлов, которая позволяет повысить эффективность Сайта и Сервисов Компании. Сookie-файлы - это небольшие текстовые файлы, размещаемые на пользовательском устройстве веб-сайтами, которые посещались пользователем. Они широко используются для того, чтобы веб-сайты могли работать эффективнее, а также, чтобы предоставлять необходимую информацию владельцам, администрации веб-сайта. Использование cookie-файлов - стандартная на данный момент практика для большинства веб-сайтов. Посещая Сайт Компании пользователь соглашается с условиями использования cookie-файлов, описанными в настоящем документе, в том числе с тем, что Компания может использовать cookie-файлы и иные данные для их последующей обработки, а также может передавать их третьим лицам для проведения исследований и предоставления услуг Партнерами Компании.

2. Цели использования cookie-файлов

Целями использования cookie-файлов на Сайте Компании являются:

Для достижения указанных целей, собираемые данные могут передаваться Партнерам Компании, которые оказывают помощь Компании в предоставлении услуг. К категориям таких получателей относятся: веб-аналитика, обработка данных, реклама, информационные и рекламные рассылки и другие услуги.

3. Прекращение использования cookie-файлов

На Сайте Компании используются cookie-файлы двух разных типов:

Прекращение использования cookie-файлов на Сайте Компании возможно путем:

Отключение используемых Сайтами Компании cookie-файлов может привести к снижению удобства использования Сайта. Большинство браузеров позволяют просматривать, удалять и блокировать cookie-файлы c веб-сайтов. Информация по управлению cookie-файлами может быть найдена в документации на используемый браузер.

Ваш браузер устарел

ИНКОМ-Недвижимость больше не поддерживает Internet Explorer. Для удобного взаимодействия с сайтом установите один из браузеров ниже: