Top.Mail.Ru
menu menu close

4-комнатная квартира, 3 этаж, 80.7 м2

Москва г., поселение Филимонковское., Марьино п., Светлый б-р., д. 15, корп. 6

Лот вт-0430496

16 700 000

Продажа 4-комнатной квартиры, 80.7 м², этаж 3/3

16 700 000

206 939 ₽/м2

Лот вт-0430496
Отправить себе
Ипотека

16 700 000

206 939 ₽/м2

Продажа 4-комнатной квартиры, 80.7 м², этаж 3/3

Лот вт-0430496
Отправить себе
Комнат
4
Общая
80.7
Жилая
40.6
Кухня
21
Этаж
3/3

Описание

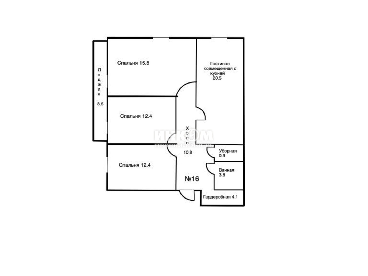
Номер лота: вт-0430496. СРОЧНАЯ ПРОДАЖА- Просторная квартира на третьем этаже трехэтажного дома в малоэтажном ЖК" Ру-таун",площадью 81 кв.м,в Новой Москве. В квартире три изолированные спальни с мебелью: одна площадью 15.8 и две по 12,4 кв.м. просторная кухня-гостиная площадью 21 кв м с кухонным гарнитуром, оснащенным бытовой техникой, мягкой и корпусной мебелью , столовой группой. В коридоре функциональная гардеробная, в квартире большие окна и просторная лоджия 3.6 кв.м с выходом из 2-х спален. В квартире автономное газоснабжение, широкие лестничные марши и большие площадки в подъезде. В пос. Марьино обширная инфраструктура, все в шаговой доступности. Остановка общественного транспорта 100 метров (до м. Филатов Луг 20 мин , до метро Пыхтино 25 мин., до метро Теплый Стан-40 мин, в 2027 году станция метро Троицкой ветки будет в 3х км). Удобный выезд на Киевское и Калужское шоссе. Благоустроенный двор с детскими площадками и уличными тренажёрами, напротив муниципальная общеобразовательная школа, новая поликлиника со взрослым и детским отделениями. Православный храм и родник. В микрорайоне открыт парк со стадионом и прогулочными дорожками. Облагороженная набережная реки Незнайки. Есть супермаркеты, детский сад, отделение Сбербанка, пункты выдачи известных маркетплейсов. Недалеко находятся ТРЦ" Саларис" , Ново-Московский ," Внуково аутлет","Лемано Про",Mега",Фуд-Сити и другие. Полная стоимость в договоре, подходит под ипотеку. Без торга!. Возможен обмен на квартиру меньшей площади с доплатой в Москве!

Общая информация

Объект
Квартира
Тип
Вторичка
Условия продажи
Свободная
Тип дома
Панельный
Лот №
вт-0430496
Комнат
4
Этаж
3/3
Площадь
Общая 80.7 м2
Жилая 40.6 м2
Кухня 21 м2
Ремонт
Косметический
Балкон
Лоджия
Вид из окна
Двор
Санузел
Раздельный
Лифт
Нет

Хотите продать похожую 4-комнатную квартиру в этом районе?

Бесплатно оценить

Индивидуальный подбор недвижимости

Заявка успешно отправлена.
Мы обрабатываем заявки ежедневно с 9:00 до 21:00.
Наверх
Мы используем cookie-файлы, чтобы вам было проще работать с сайтом. Узнать больше
К сайту подключен сервис Яндекс.Метрика, который также использует файлы cookie. Узнать больше
Согласен
Согласен
Согласие на обработку персональных данных с помощью сервиса «Яндекс.Метрика»

Я (далее — «Пользователь» или «Субъект персональных данных») при использовании сайта https://www.incom.ru (далее — «Сайт») даю свое согласие на обработку персональных данных посредством сервисом веб-аналитики «Яндекс.Метрика», предоставляемый компанией ООО «ЯНДЕКС», (119021, г. Москва, вн. тер. г. Муниципальный Округ Хамовники, ул. Льва Толстого, д. 16), Союзу содействия развитию рынка недвижимости «ИНКОМ-НЕДВИЖИМОСТЬ» (ИНН 7719020591, 105318, г. Москва, ул. Щербаковская, д. 3) , со следующими условиями.

1. Категории обрабатываемых данных: IP-адрес, информация из файлов cookie, информация о браузере пользователя (или иной программе, с помощью которой осуществляется доступ к сервисам Сайта), информация об аппаратном и программном обеспечении устройства пользователя, время доступа, адреса запрашиваемых страниц.

2. Цель обработки персональных данных: анализ пользовательской активности с помощью сервиса «Яндекс.Метрика».

3. Способы обработки: сбор, запись, систематизация, накопление, хранение, уточнение (обновление, изменение), извлечение, использование, обезличивание, передача (доступ, предоставление), блокирование, удаление, уничтожение персональных данных.

4. Срок обработки и хранения: до получения от субъекта персональных данных требования о прекращении обработки/отзыва согласия.

5. Способ отзыва: заявление об отзыве в письменном виде путём его направления на адрес электронной почты: pr@incom.ru или путем письменного обращения по адресу: 105318, г. Москва, ул. Щербаковская, д. 3.

6. Субъект персональных данных вправе запретить своему оборудованию прием этих данных или ограничить прием этих данных. При отказе от получения таких данных или при ограничении приема данных некоторые функции Сайта могут работать некорректно. Субъект персональных данных обязуется сам настроить свое оборудование таким способом, чтобы оно обеспечивало адекватный его желаниям режим работы и уровень защиты данных файлов «cookie», а Организация не предоставляет технологических и правовых консультаций на темы подобного характера.

7. Порядок уничтожения персональных данных при достижении цели их обработки или при наступлении иных законных оснований: лицо, ответственное за обработку персональных данных, производит стирание данных методом перезаписи (замена всех единиц хранения информации на «0») с составлением акта об уничтожении персональных данных.

8. Я согласен/согласна квалифицировать в качестве своей простой электронной подписи под настоящим Согласием выполнение мною следующего действия на сайте https://www.incom.ru: нажатие мною на интерфейсе с текстом «К сайту подключен сервис Яндекс.Метрика, который также использует файлы cookie» на элемент с текстом «Согласен».

Соглашение об использовании cookie-файлов
1. Общие сведения

На Сайте компании Союза содействия развитию рынка недвижимости «ИНКОМ-НЕДВИЖИМОСТЬ» (в дальнейшем — Компания) применяется технология сбора информации с использованием cookie-файлов, которая позволяет повысить эффективность Сайта и Сервисов Компании. Сookie-файлы - это небольшие текстовые файлы, размещаемые на пользовательском устройстве веб-сайтами, которые посещались пользователем. Они широко используются для того, чтобы веб-сайты могли работать эффективнее, а также, чтобы предоставлять необходимую информацию владельцам, администрации веб-сайта. Использование cookie-файлов - стандартная на данный момент практика для большинства веб-сайтов. Посещая Сайт Компании пользователь соглашается с условиями использования cookie-файлов, описанными в настоящем документе, в том числе с тем, что Компания может использовать cookie-файлы и иные данные для их последующей обработки, а также может передавать их третьим лицам для проведения исследований и предоставления услуг Партнерами Компании.

2. Цели использования cookie-файлов

Целями использования cookie-файлов на Сайте Компании являются:

Для достижения указанных целей, собираемые данные могут передаваться Партнерам Компании, которые оказывают помощь Компании в предоставлении услуг. К категориям таких получателей относятся: веб-аналитика, обработка данных, реклама, информационные и рекламные рассылки и другие услуги.

3. Прекращение использования cookie-файлов

На Сайте Компании используются cookie-файлы двух разных типов:

Прекращение использования cookie-файлов на Сайте Компании возможно путем:

Отключение используемых Сайтами Компании cookie-файлов может привести к снижению удобства использования Сайта. Большинство браузеров позволяют просматривать, удалять и блокировать cookie-файлы c веб-сайтов. Информация по управлению cookie-файлами может быть найдена в документации на используемый браузер.

Ваш браузер устарел

ИНКОМ-Недвижимость больше не поддерживает Internet Explorer. Для удобного взаимодействия с сайтом установите один из браузеров ниже: