Top.Mail.Ru
menu menu close

Купить здание, 1 291 м²

Москва г., Бартеневская ул., д.19

310 000 000

Купить здание, 1 291 м²

310 000 000

240 124 ₽/м²

Отправить себе
Лот нп-0024692

310 000 000

240 124 ₽/м²

Купить здание, 1 291 м²

Лот нп-0024692
Отправить себе

Описание

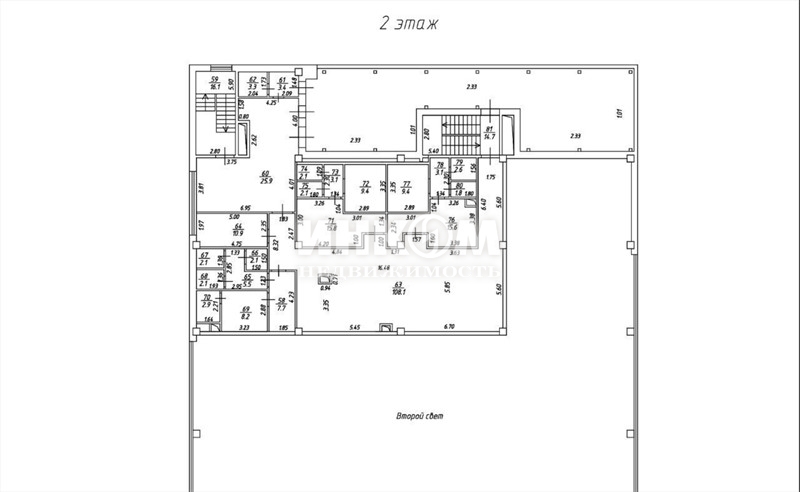
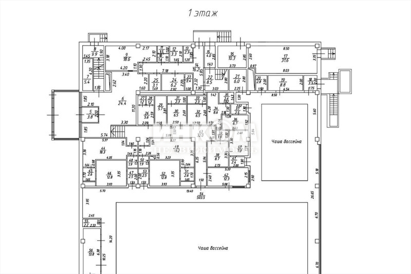
Номер лота: нп-0024692. Бонус риелтору. Уникальное предложение для инвесторов и предпринимателей: продаётся отдельно стоящее 3-х этажное здание под физкультурно-оздоровительный комплекс с 2 бассейнами, сауной и хамамом Основные характеристики: год постройки 2020, в эксплуатацию введен также в 2020г. Отдельно стоящий 2-х этажный физкультурно-оздоровительный комплекс со своей огороженной территорией и парковкой в собственности. Отделка чистовая, вентиляция - приточно-вытяжная, кондиционирование -сплит -системы, 4 входа (1 центральный, 3 эвакуационных), во всех помещениях выполнен высококачественный ремонт, включая отделку 2х бассейнов (взрослый и детский) с высокотехнологичным оборудованием, все коммуникации подключены (водоснабжение, канализация, вентиляция). Виды разрешенного использования: Участки размещения спортивно-рекреационных объектов; объекты размещения помещений и технических устройств крытых спортивных сооружений массового посещения. Общая площадь: 1291 кв.м. Высота потолков: 3-3,5 м Этажность: 3 этажа, лифты отсутствуют Электрическая мощность: 200 кВт Парковка: удобная парковочная зона для клиентов и персонала на 30 машиномест. Безопасность: Круглосуточный доступ, система пожаротушения, видеонаблюдение. Информация по бассейнам: бассейн детский 10 х 6, глубина мин. - 0,6 , глубина макс. - 1,25; бассейн взрослый 25*11, глубина мин. - 1,2 , глубина макс - 2,5. Также присутствует хамам и сауна. Земельный участок в аренде до 2074г. Преимущества объекта: " Готовое здание с минимальными вложениями; " Возможность быстрого запуска бизнеса; " Высокий потенциал доходности благодаря растущему спросу на услуги в сфере фитнеса и оздоровления; " Подходит для размещения тренажерных залов, бассейна, спортивных секций. Идеально для: " Инвесторов, желающих вложиться в перспективный бизнес; " Предпринимателей, планирующих открыть собственный физкультурно-оздоровительный комплекс; " Сетевых компаний, расширяющих свое присутствие на рынке. Позвоните нам прямо сейчас, чтобы узнать больше и записаться на просмотр. Мы гарантируем безопасную сделку и юридическую поддержку нашим клиентам. Электрическая мощность 200 кВт Мебель Да Ремонт Чистовая Вход в помещение Общий Доступ в помещение Свободный Удобства Интернет Кондиционер Вентиляция Кухня Мебель Пожарная сигнализация О здании Тип коммерции Материал постройки Монолитный Отопление Центральное

Общая информация

Тип недвижимости
Коммерческая недвижимость
Объект
Помещение
Лот №
нп-0024692
Общая площадь
1 291 м²
Этаж
3/3

Специальные предложения




Наверх
Мы используем cookie-файлы, чтобы вам было проще работать с сайтом. Узнать больше
К сайту подключен сервис Яндекс.Метрика, который также использует файлы cookie. Узнать больше
Согласен
Согласен
Согласие на обработку персональных данных с помощью сервиса «Яндекс.Метрика»

Я (далее — «Пользователь» или «Субъект персональных данных») при использовании сайта https://www.incom.ru (далее — «Сайт») даю свое согласие на обработку персональных данных посредством сервисом веб-аналитики «Яндекс.Метрика», предоставляемый компанией ООО «ЯНДЕКС», (119021, г. Москва, вн. тер. г. Муниципальный Округ Хамовники, ул. Льва Толстого, д. 16), Союзу содействия развитию рынка недвижимости «ИНКОМ-НЕДВИЖИМОСТЬ» (ИНН 7719020591, 105318, г. Москва, ул. Щербаковская, д. 3) , со следующими условиями.

1. Категории обрабатываемых данных: IP-адрес, информация из файлов cookie, информация о браузере пользователя (или иной программе, с помощью которой осуществляется доступ к сервисам Сайта), информация об аппаратном и программном обеспечении устройства пользователя, время доступа, адреса запрашиваемых страниц.

2. Цель обработки персональных данных: анализ пользовательской активности с помощью сервиса «Яндекс.Метрика».

3. Способы обработки: сбор, запись, систематизация, накопление, хранение, уточнение (обновление, изменение), извлечение, использование, обезличивание, передача (доступ, предоставление), блокирование, удаление, уничтожение персональных данных.

4. Срок обработки и хранения: до получения от субъекта персональных данных требования о прекращении обработки/отзыва согласия.

5. Способ отзыва: заявление об отзыве в письменном виде путём его направления на адрес электронной почты: pr@incom.ru или путем письменного обращения по адресу: 105318, г. Москва, ул. Щербаковская, д. 3.

6. Субъект персональных данных вправе запретить своему оборудованию прием этих данных или ограничить прием этих данных. При отказе от получения таких данных или при ограничении приема данных некоторые функции Сайта могут работать некорректно. Субъект персональных данных обязуется сам настроить свое оборудование таким способом, чтобы оно обеспечивало адекватный его желаниям режим работы и уровень защиты данных файлов «cookie», а Организация не предоставляет технологических и правовых консультаций на темы подобного характера.

7. Порядок уничтожения персональных данных при достижении цели их обработки или при наступлении иных законных оснований: лицо, ответственное за обработку персональных данных, производит стирание данных методом перезаписи (замена всех единиц хранения информации на «0») с составлением акта об уничтожении персональных данных.

8. Я согласен/согласна квалифицировать в качестве своей простой электронной подписи под настоящим Согласием выполнение мною следующего действия на сайте https://www.incom.ru: нажатие мною на интерфейсе с текстом «К сайту подключен сервис Яндекс.Метрика, который также использует файлы cookie» на элемент с текстом «Согласен».

Соглашение об использовании cookie-файлов
1. Общие сведения

На Сайте компании Союза содействия развитию рынка недвижимости «ИНКОМ-НЕДВИЖИМОСТЬ» (в дальнейшем — Компания) применяется технология сбора информации с использованием cookie-файлов, которая позволяет повысить эффективность Сайта и Сервисов Компании. Сookie-файлы - это небольшие текстовые файлы, размещаемые на пользовательском устройстве веб-сайтами, которые посещались пользователем. Они широко используются для того, чтобы веб-сайты могли работать эффективнее, а также, чтобы предоставлять необходимую информацию владельцам, администрации веб-сайта. Использование cookie-файлов - стандартная на данный момент практика для большинства веб-сайтов. Посещая Сайт Компании пользователь соглашается с условиями использования cookie-файлов, описанными в настоящем документе, в том числе с тем, что Компания может использовать cookie-файлы и иные данные для их последующей обработки, а также может передавать их третьим лицам для проведения исследований и предоставления услуг Партнерами Компании.

2. Цели использования cookie-файлов

Целями использования cookie-файлов на Сайте Компании являются:

Для достижения указанных целей, собираемые данные могут передаваться Партнерам Компании, которые оказывают помощь Компании в предоставлении услуг. К категориям таких получателей относятся: веб-аналитика, обработка данных, реклама, информационные и рекламные рассылки и другие услуги.

3. Прекращение использования cookie-файлов

На Сайте Компании используются cookie-файлы двух разных типов:

Прекращение использования cookie-файлов на Сайте Компании возможно путем:

Отключение используемых Сайтами Компании cookie-файлов может привести к снижению удобства использования Сайта. Большинство браузеров позволяют просматривать, удалять и блокировать cookie-файлы c веб-сайтов. Информация по управлению cookie-файлами может быть найдена в документации на используемый браузер.

Ваш браузер устарел

ИНКОМ-Недвижимость больше не поддерживает Internet Explorer. Для удобного взаимодействия с сайтом установите один из браузеров ниже: